
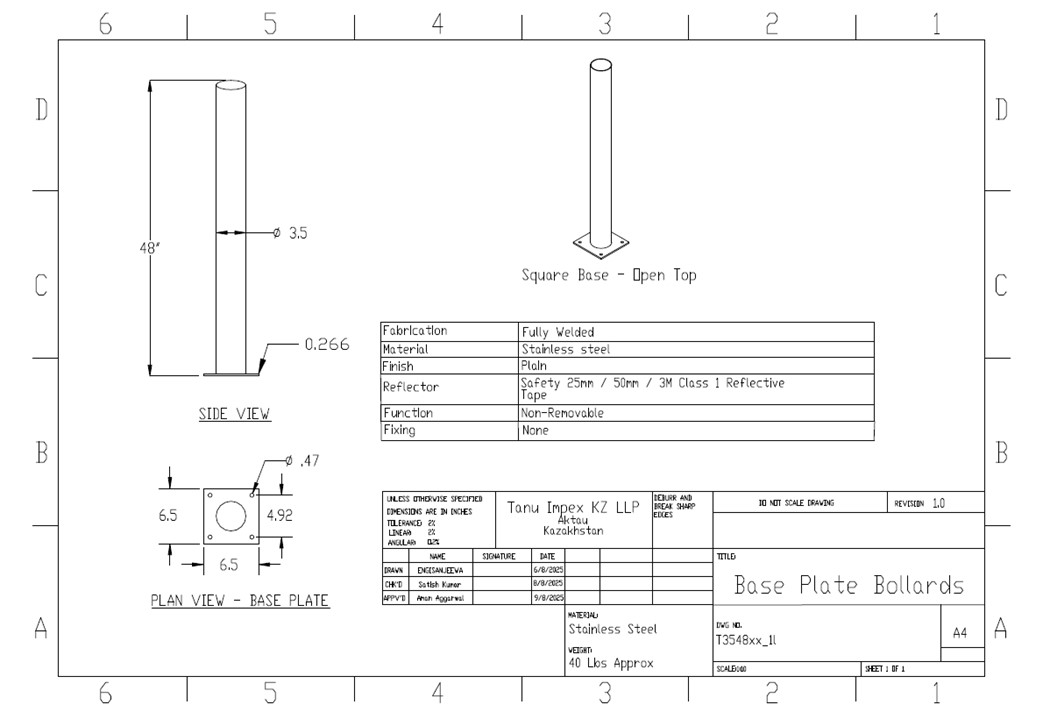
Usage: Base Plate Bollards are sturdy, vertical posts typically used for traffic control, security, and pedestrian safety. They serve as protective barriers to prevent vehicle access in sensitive areas, such as sidewalks, building entrances, and parking lots. Bollards are also used to guide traffic and mark boundaries without obstructing pedestrian movement. Tanu Impex Bollards are available in various designs that offer both functionality and aesthetic value, The Base plate bollards are commonly used indoors and on multi-floor installations where digging in the ground is not possible. This can be supplied open top, flat-top, or cape-top. When suppling open top, the customer can customize the cap to their choice including with cast and machined tops By default, these are shipped with a plastic cap.
| General Information | |
| Fabrication | Fully-welded |
|---|---|
| Type | Square Base Plate – Stainless Steel |
| Function | Non-Removable |
| Finish | Plain |
| Reflector | |
| Reflector | 45 mm Class 1 Reflective Tape |
| Cap Options | |
| Default | 25mm / 50mm Polypropylene Cap |
| Optional | Range of various designs available |
| Fixings | |
| Fixings Included | None |
| Body Material | |
| Type | Stainless Steel Pipe (Prime / Surplus / Used) |
| Acceptable Chemical Composition |
|
| Base Plate Material | |
| Type | Stainless Steel Plate (Prime / Surplus / Used) |
| Acceptable Chemical Composition |
|
| Specification | Model T35482 | Model T45364 |
|---|---|---|
| Height | 1220 mm | 1220 mm |
| Body Diameter | 89 mm | 114 mm |
| Body Thickness | 6.75 mm | 8.64 mm |
| Base Plate | 165 mm × 165 mm | 165 mm × 165 mm |
| Base Plate Thickness | 6 mm | 6 mm |
| Weight | 18.15 Kgs | 28.6 Kgs |
Note: +/-2% Dimensional Tolerance
| Material | Source | % of Weight |
|---|---|---|
| Body Pipe | Kazakhstan** | 92.8% |
| Base Plate | China / India | 7.1% |
| Cap | India | 0.5% |
| Reflector | India | 0.25% |
| Welding Wire | Kazakhstan** | 0.25% |
**May have been previously imported by suppliers